Við sameinum verkfræði, lýsingarhönnun og tæknilega útfærslu til að skapa vandaðar og skýrar lausnir í mannvirkjahönnun.
Stikan Teiknistofa sérhæfir sig í byggingarteikningum, raflagnateikningum,
mannvirkjahönnun og lýsingarhönnun. Við bjóðum einnig upp á
KNX hússtjórnarkerfi, Home Assistant og tæknilegar lausnir fyrir heimili og fyrirtæki.
Við vinnum náið með viðskiptavinum frá hugmynd að fullbúinni lausn,
með áherslu á fagmennsku, gæði og skýra framsetningu teikninga.
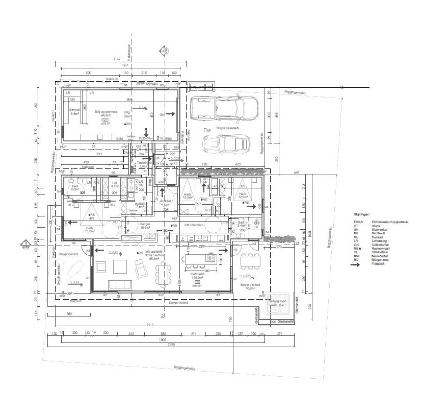
Við höfum hafið vinnu við nýtt verkefni í mannvirkjahönnun.
Nýr aðili í framleiðslu húsa til flutnigs.
Núna seinustu vikur höfum við unnið að einbýlishúsi í Hagahverfi í Hörgársveit.